Wir haben unsere Ferienwohnung behaglich und gemütlich eingerichtet, damit Sie Ihren Urlaub hier in Burhave in vollen Zügen genießen können. Gehen Sie mit auf einen kleinen Rundgang durch die Wohnung und schauen Sie in alle Zimmer.
Die Wohnung ist für bis zu 4 Personen geeignet und eingerichtet.

Ein Tip: ein Klick auf die kleinen Bilder vergrößert das Bild, schließen können Sie es wieder mit einem weiteren Klick direkt ins Bild.

Und nun viel Spaß!

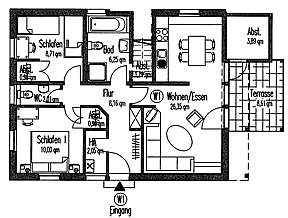
Der Grundriss der Ferienwohnung Ketsch im Ergeschoss

Die Wohnung liegt im Erdgeschoss des neu erbauten Hauses.
Das Haus wurde als Niedrig-Energiehaus mit umweltfreundlichen Materialien erstellt.
Die Wohnfläche beträgt insgesamt ca. 71 m², aufgeteilt in einen Wohnraum mit integrierter Küche, ein Schlafzimmer mit Doppelbett, ein Kinderzimmer mit 2 Einzelbetten, Badezimmer mit Dusche und Wanne, Gäste-WC, Sonnen- terasse und Abstellraum mit Terassenmöbeln und der Möglichkeit, Fahrräder sicher abzustellen.